Weiden:
Ihr neuer Standort im Herzen von Weiden – Hohe Frequentierung für Ihren Erfolg ** 1 A Lage
Objekt-Nr.: 3773










Mietpreis zzgl. NK:
3.500 € pro Monat
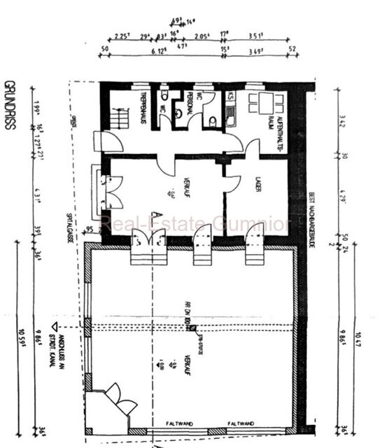
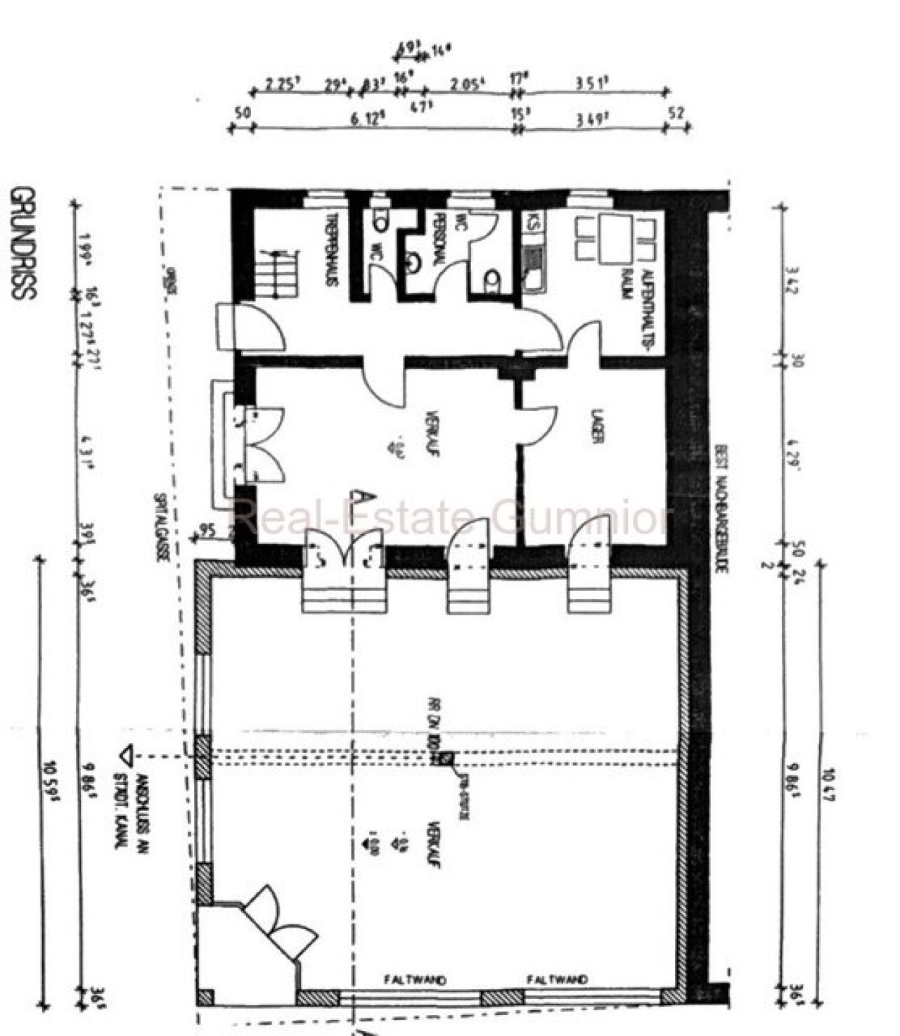
Gesamtfläche ca.:
170 m²
Verkaufsfläche ca.:
100 m²
Willkommen in dieser einzigartigen Verkaufsfläche im Stadtzentrum von Weiden, die Ihnen mit 170 m² ausreichend Platz für kreative Geschäftsideen bietet. Hier erleben Sie ein pulsierendes Umfeld, das durch hohe Frequentierung besticht und Ihnen die Möglichkeit gibt, Ihre Produkte oder Dienstleistungen optimal zu präsentieren. Die gepflegte Immobilie erstreckt sich über das EG und bietet somit nicht nur Platz, sondern auch eine flexible Nutzung. Der moderne Zustand und die letzte umfassende Modernisierung im Jahr 2017 sorgen dafür, dass Sie sofort einziehen können und sich um nichts kümmern müssen.
Die hochwertigen Fliesenböden sind nicht nur ästhetisch ansprechend, sondern auch äußerst pflegeleicht und langlebig, was sie perfekt für den Einzelhandel macht. Sie schaffen eine einladende Atmosphäre und unterstützen die Hygiene, die in Verkaufsräumen unerlässlich ist.
In der unmittelbaren Umgebung finden Sie eine hervorragende Anbindung an den öffentlichen Nahverkehr sowie diverse Einkaufsmöglichkeiten, die sowohl Ihre Kunden als auch Ihre Mitarbeiter schätzen werden. Weiden bietet darüber hinaus eine ausgezeichnete Infrastruktur mit zahlreichen Dienstleistungen, die für Ihr Unternehmen von Vorteil sind. Profitieren Sie von der zentralen Lage, die eine hohe Sichtbarkeit und Erreichbarkeit garantiert, und entwickeln Sie Ihr Geschäft in einem der besten Standorte der Stadt.
Lageart: A-Lage
Provisionspflichtig: ja
Provision: 1,19 Monatsmieten kalt inkl. 19 % MwSt,
Kaution: 2 Monatskaltmieten
Letzte Modernisierung/ Sanierung: 2017
Qualität der Ausstattung: normal
Baujahr-Gebäude: 1891
Etagenanzahl: 1
Umgebung: Bus, Einkaufscenter, Einkaufsmöglichkeit, Park, weiterführende Schule
Zulieferung: von vorn
Bodenbelag: Fliesen
Zustand: gepflegt
Bei Abschluss eines Kaufvertrages wird eine Vermittlungs-/ Nachweisprovision in Höhe von 3,57 % inklusive 19 % Mehrwertsteuer auf den Kaufpreis vom Käufer fällig. Bei Abschluss eines Mietvertrages wird eine Maklercourtage i.H. von 2 Monatsmieten ( kalt ) zzgl. MwSt. fällig
Die von uns gemachten Informationen beruhen auf Angaben des Verkäufers bzw. der Verkäuferin. Für die Richtigkeit und Vollständigkeit der Angaben kann keine Gewähr bzw. Haftung übernommen werden. Ein Zwischenverkauf und Irrtümer sind vorbehalten.
AUF WUNSCH empfehlen wir Ihnen Finanzierungsexperten von namhaften Häusern wie der Bausparkasse BHW mit Top Konditionen ! Sprechen Sie mit uns
Wir weisen auf unsere Allgemeinen Geschäftsbedingungen hin. Durch weitere Inanspruchnahme unserer Leistungen erklären Sie die Kenntnis und Ihr Einverständnis.
Das könnte Ihnen auch gefallen
DE-92637 Weiden
Neustadt an der Waldnaab
Bayern























.jpg)


