Irchenrieth:
Top ** Ihre Gelegenheit ** Gewerbefläche ab 200 qm in unserem WUG -Center direkt in Irchenrieth ** Top Erstbezug
Objekt-Nr.: 3749



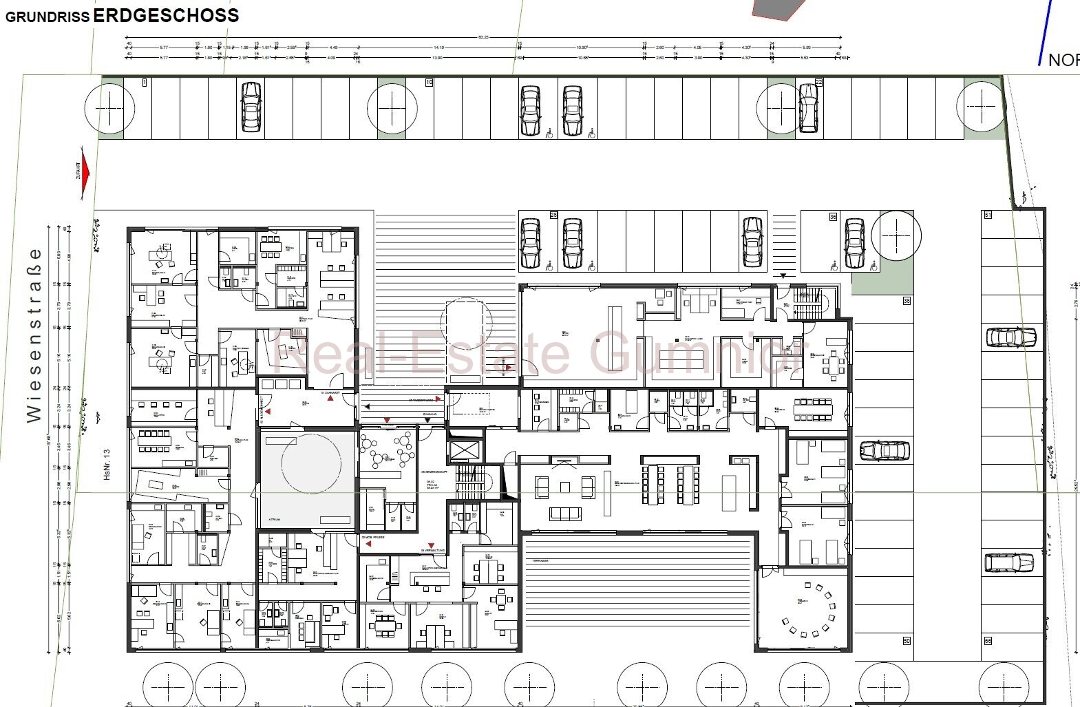
EG-Grundriss







Mietpreis zzgl. NK:
Preis auf Anfrage
Gesamtfläche ca.:
750 m²
Büro-/Praxisfläche ca.:
200 m²
Herzlich willkommen in Ihrem neuen Standord am Stadtrand von Irchenrieth! Der am stärksten wachsenden Gemeinde im Landkreis Neustadt-WN. Hier entsteht unser Wohn- und Gesundheitsdomizil ( kurz WUG ) das unter anderen ca. 120 neue Arbeitsplätze schafft. Neben Gewerbeflächen im EG für ( Apotheke, Zahnarzt, Allgemeinarzt u.s.w.),finden sich im 1.OG und 2.OG dieses modernen Gebäudekomplexes insgesamt bis zu 48 Apartments mit jeweils
1-2 Zimmern und einer Größe von ca. zwischen ca. 22 und 62 qm Wohnfläche. Diese komfortablen Wohnungen bieten Ihnen ein behagliches Wohnambiente hinter einer modernen und hochwärmegedämmter Fassade in nachhaltiger Bauweise und überzeugen durch eine hochwertige Ausstattung und zeitgemäßer Architektur.
Die Wohnungen erstrecken sich auf der 2 Etagen und umfassen ein geräumiges Schlafzimmer, ein modernes Badezimmer mit Dusche sowie ein Wohn-Esszimmer mit integrierter Küche.…
Dank des vorhandenen Aufzugs gelangen Sie bequem in Ihre neue Wohnung, ohne sich um Treppenstufen sorgen zu müssen – ideal für alle Generationen!
Die Bodenbeläge aus Fliesen und Laminat verleihen den Räumlichkeiten eine angenehme Atmosphäre und sind zugleich pflegeleicht. Besonders hervorzuheben ist die Fußbodenheizung, die in der kalten Jahreszeit für wohlige Wärme sorgt und ein gemütliches Wohngefühl vermittelt.
Die Lage am Stadtrand von Irchenrieth bietet Ihnen eine perfekte Kombination aus Ruhe und guter Anbindung. In unmittelbarer Nähe finden Sie Busverbindungen sowie Einkaufsmöglichkeiten für den täglichen Bedarf. Die Infrastruktur lässt keine Wünsche offen: Einkaufsmöglichkeiten, medizinische Versorgung wie Ärzte und Apotheken im eigenen Haus sind bequem erreichbar.
Irchenrieth selbst besticht durch seine charmante Umgebung und vielfältige Freizeitangebote. Genießen Sie Spaziergänge oder Radtouren in der Natur oder besuchen Sie kulturelle Veranstaltungen in der Region. Dank der guten Verkehrsanbindung erreichen Sie auch umliegende Städte rasch und unkompliziert.
Überzeugen Sie sich selbst von diesen attraktiven Mietwohnungen und profitieren Sie vom KfW 40 QNG Standard, der Ihnen nicht nur höchsten Wohnkomfort, sondern auch hervorragende Energieeffizienz garantiert. Zögern Sie nicht – vereinbaren Sie noch heute einen Besichtigungstermin!
Kaution: 2 Monatskaltmieten
Qualität der Ausstattung: gehoben
Baujahr-Gebäude: 2026
Umgebung: Bus, Einkaufsmöglichkeit
Fahrstuhl: ja
Barrierefrei: ja
Fußweg zu Öffentl. Verkehrsmitteln: 5 Minute(n)
Fahrzeit zum nächsten Hauptbahnhof: 15 Minute(n)
Fahrzeit zur nächsten BAB: 15 Minute(n)
Bei Abschluss eines Kaufvertrages wird eine Vermittlungs-/ Nachweisprovision in Höhe von 3,57 % inklusive 19 % Mehrwertsteuer auf den Kaufpreis vom Käufer fällig. Bei Abschluss eines Mietvertrages wird eine Maklercourtage i.H. von 2 Monatsmieten ( kalt ) zzgl. MwSt. fällig
Die von uns gemachten Informationen beruhen auf Angaben des Verkäufers bzw. der Verkäuferin. Für die Richtigkeit und Vollständigkeit der Angaben kann keine Gewähr bzw. Haftung übernommen werden. Ein Zwischenverkauf und Irrtümer sind vorbehalten.
AUF WUNSCH empfehlen wir Ihnen Finanzierungsexperten von namhaften Häusern wie der Bausparkasse BHW mit Top Konditionen ! Sprechen Sie mit uns
Wir weisen auf unsere Allgemeinen Geschäftsbedingungen hin. Durch weitere Inanspruchnahme unserer Leistungen erklären Sie die Kenntnis und Ihr Einverständnis.
Das könnte Ihnen auch gefallen





























.jpg)


