Irchenrieth:
Büro- und Praxisflächen im Wohn- und Gesundheitsdomizil zu vermieten 250 - 300 qm
Property ID: 3639


Rental price plus utilities:
Price on request
GLA:
750 sq. m.
Office/practice area:
250 sq. m.
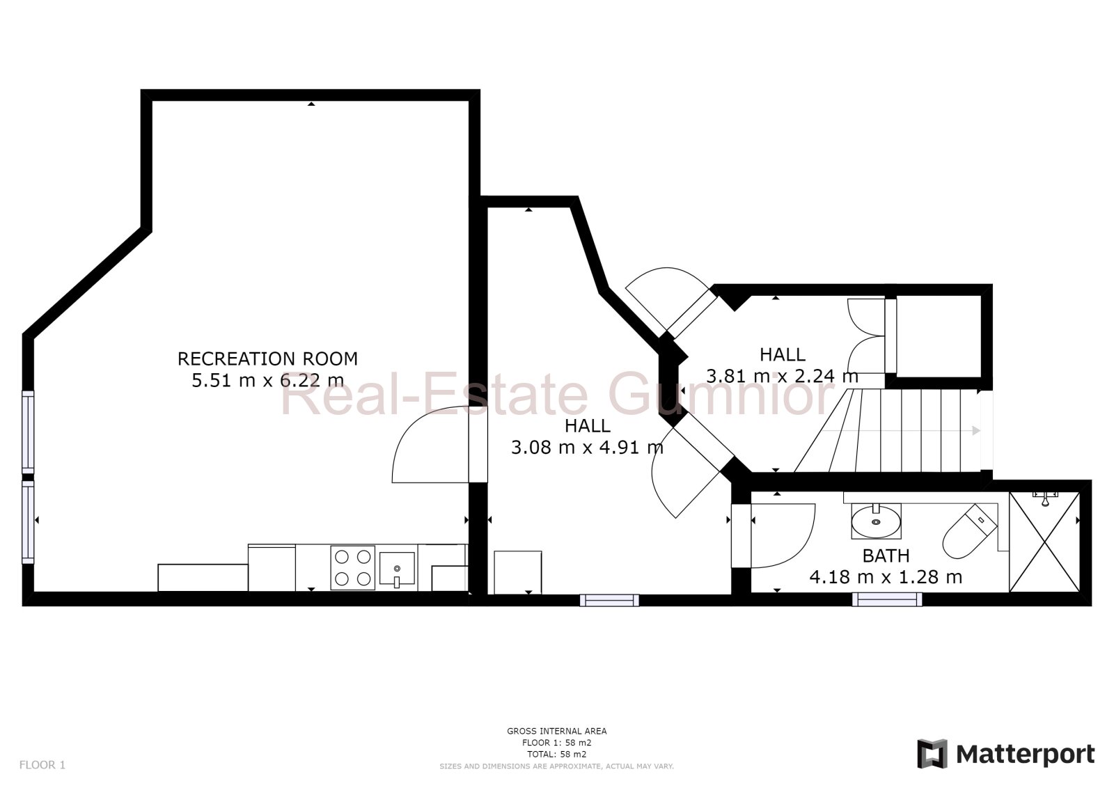
Herzlich willkommen in Ihrem neuen Standord am Stadtrand von Irchenrieth! Der am stärksten wachsenden Gemeinde im Landkreis Neustadt-WN. Hier entsteht das Pflege- und Gesundheitszentrum ( kurz PGZ) das unter anderen 120 neue Arbeitsplätze schafft. Neben Gewerbeflächen im EG für ( Apotheke, Zahnarzt, Allgemeinarzt u.s.w.),finden sich im 2.OG dieses modernen Gebäudekomplexes insgesamt 20 Apartments mit jeweils 2 Zimmern und einer Größe von ca. zwischen 50 und 75 qm Wohnfläche. ( Diese komfortablen 2-Zimmer-Wohnungen bieten Ihnen ein behagliches Wohnambiente auf ca. 50 m².bis ca. 75 qm Wohnfläche. Sie befinden sich in einem modernen hochwärmegedämmten Gebäude in nachhaltiger Bauweise und überzeugen durch eine hochwertige Ausstattung und zeitgemäßer Architektur.
Die Wohnungen erstrecken sich auf der 2ten Etage und umfassen ein geräumiges Schlafzimmer, ein modernes Badezimmer mit Dusche sowie ein Wohn-Esszimmer mit integrierter Küche.…
Ein Highlight der Wohnungen ist der Balkon, auf dem Sie entspannte Stunden verbringen und die frische Luft genießen können. Dank des vorhandenen Aufzugs gelangen Sie bequem in Ihre neue Wohnung, ohne sich um Treppenstufen sorgen zu müssen – ideal für alle Generationen!
Die Bodenbeläge aus Fliesen und Laminat verleihen den Räumlichkeiten eine angenehme Atmosphäre und sind zugleich pflegeleicht. Besonders hervorzuheben ist die Fußbodenheizung, die in der kalten Jahreszeit für wohlige Wärme sorgt und ein gemütliches Wohngefühl vermittelt.
Die Lage am Stadtrand von Irchenrieth bietet Ihnen eine perfekte Kombination aus Ruhe und guter Anbindung. In unmittelbarer Nähe finden Sie Busverbindungen sowie Einkaufsmöglichkeiten für den täglichen Bedarf. Die Infrastruktur lässt keine Wünsche offen: Einkaufsmöglichkeiten, medizinische Versorgung wie Ärzte und Apotheken im eigenen Haus sind bequem erreichbar.
Irchenrieth selbst besticht durch seine charmante Umgebung und vielfältige Freizeitangebote. Genießen Sie Spaziergänge oder Radtouren in der Natur oder besuchen Sie kulturelle Veranstaltungen in der Region. Dank der guten Verkehrsanbindung erreichen Sie auch umliegende Städte rasch und unkompliziert.
Überzeugen Sie sich selbst von diesen attraktiven Mietwohnungen und profitieren Sie vom KfW 40 Standard, der Ihnen nicht nur höchsten Wohnkomfort, sondern auch hervorragende Energieeffizienz garantiert. Zögern Sie nicht – vereinbaren Sie noch heute einen Besichtigungstermin!
Deposit: 2 Monatskaltmieten
Quality of fittings: Superior
Year of construction: 2025
Surroundings: Bus, Shopping facilities
Lift: yes
Suitable for disabled people: yes
Walking distance to public transport: 5 Minute(s)
Drive to nearest rail station: 15 Minute(s)
Drive to nearest motorway: 15 Minute(s)
Bei Abschluss eines Kaufvertrages wird eine Vermittlungs-/ Nachweisprovision in Höhe von 3,57 % inklusive 19 % Mehrwertsteuer auf den Kaufpreis vom Käufer fällig. Bei Abschluss eines Mietvertrages wird eine Maklercourtage i.H. von 2 Monatsmieten ( kalt ) zzgl. MwSt. fällig
Die von uns gemachten Informationen beruhen auf Angaben des Verkäufers bzw. der Verkäuferin. Für die Richtigkeit und Vollständigkeit der Angaben kann keine Gewähr bzw. Haftung übernommen werden. Ein Zwischenverkauf und Irrtümer sind vorbehalten.
Wir weisen auf unsere Allgemeinen Geschäftsbedingungen hin. Durch weitere Inanspruchnahme unserer Leistungen erklären Sie die Kenntnis und Ihr Einverständnis.
You might also like
Büro- und Praxisflächen im Pflege- und Gesundheitszentrum zu vermieten 250 - 300 qm
Büro- und Praxisflächen im Pflege- und Gesundheitszentrum zu vermieten













